3 Bedroom Semi-Detached For Sale
Beverley Road, Maidstone, ME16 9DU
£425,000
  • ***PRICE RANGE £425,000 - £475,000***
  • THREE BEDROOM SEMI-DETACHED HOUSE
  • LOG BURNER IN LOUNGE
  • OFF ROAD PARKING FOR SEVERAL CARS
  • GARAGE
  • CONSERVATORY TO REAR
  • LARGE OPEN PLAN LOUNGE/DINER
  • HIVE HEATING CONTROLS

Summary

This spacious semi-detached house is located in the village of Barming on the outskirts of Maidstone. With a newly laid driveway to the front and side of the property plus a garage, there is plenty of off road parking.

The downstairs has a lovely open plan lounge/diner with log burner and double doors leading to the conservatory. Upstairs has built-in wardrobes in all three bedrooms giving you plenty of storage space.

The sunny rear garden has patio, lawn and decked areas, plus a shed.

There are local shops on your doorstep and the train station is less than 2 miles away.

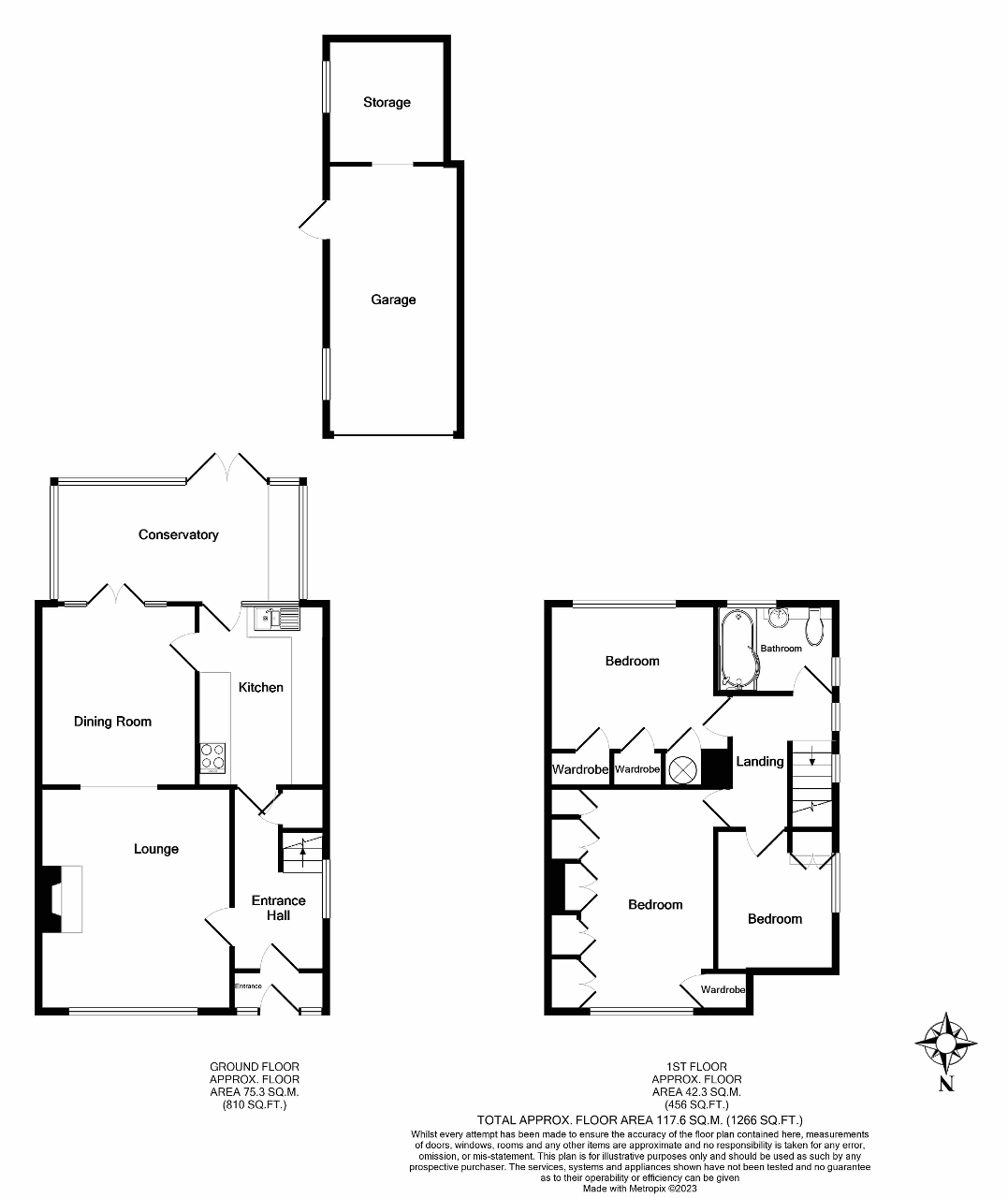
Floors/rooms

Ground Floor

Entrance Porch -

Entrance Hall -

Lounge - 14' 1'' x 12' 1'' (4.3m x 3.7m)

Dining Area - 11' 1'' x 9' 10'' (3.4m x 3m)

Conservatory - 15' 8'' x 7' 6'' (4.8m x 2.3m)

Kitchen - 11' 5'' x 7' 10'' (3.5m x 2.4m)

First Floor

Landing -

Bedroom 1 - 14' 5'' x 8' 10'' (4.4m x 2.7m) up to built-in wardrobes

Bedroom 2 - 10' 5'' x 8' 10'' (3.2m x 2.7m) Up to built-in wardrobes

Bedroom 3 - 8' 10'' x 6' 10'' (2.7m x 2.1m) up to built in wardrobe

Bathroom -

Exterior

Front Garden -

Off Road Parking -

Garage -

Rear Garden -

Additional Information

For further information on this property please call 01304 447418 or e-mail [email protected]

EPC Graph

Interested in this property?

01304 447418

[email protected]

Request a viewing

Share this property:

Rightmove ZooplaPrimelocationOnthemarketTrustpilotGoogle ReviewsOmbudsmanTSI